Inre Hamnen - Se alla lediga 3 RoK

Bränneriet
I den nya stadsdelen Inre Hamnen skapar vi bekväma och moderna lägenheter för dig som vill bo med närhet till både innerstaden och vattnet. Här planeras det för småbåtshamn, badplatser och slingrande kanaler för att ge området en härlig närhet till vattnet. Restauranger, lekplatser, brygghäng och långa kajstråk är bara ett fåtal av de saker som Inre hamnen kommer ha att erbjuda.
Här bygger vi med stor omsorg för miljön och för dig som boende. Lägenheterna är mellan 1 till 4 rum och kök. Dom är ljusa och stilrena med en öppen planlösning. Alla lägenheterna har fullt utrustade kök, energisnåla vitvaror och badrum utrustade med antingen kombimaskin eller tvättmaskin och torktumlare.
Som boende har du även tillgång till två gemensamma takterrasser.
Eget abonnemang för el behövs ej då elförbrukningen mäts i lägenheten och betalas utifrån förbrukningen av hyresgästen via faktura.
Lägenhetsförråd finns i själva lägenheten eller extra insatta garderober.
Hyran som anges är den hyra lägenheten kostar per månad.
Dessa 3 RoK finns lediga för tillfället. Fyll i en intresseanmälan för att boka en visning.
Saltängsgatan 102
1-1304 – 75,5 kvm – 14.360 kr/mån – Balkong (ledig från 1/4)
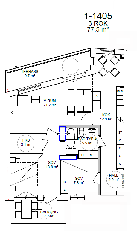
1-1405 – 77,5 kvm – 14.961 kr/mån – Balkong & terrass (ledig från 1/5)
1-1503 – 75,5 kvm – 14.360 kr/mån – Balkong (ledig från 1/7)
Kolargränd 6
2-1401 – 86 kvm – 15.983 kr/mån – Balkong & terrass (ledig från 1/6)
Med reservation för felskrivningar.
Snabbfakta
- Hiss
- Balkong
- Fiber
- Diskmaskin
- Tvättmaskin
- Torktumlare
- Lägenhetsförråd
- Cykelförråd
- Uteplats
*I hyran ingår värme och vatten.
Planritning
Intresseanmälan
Fler lediga bostäder
Trädgårdsgatan 33A
Nyproduktion
Utforska bostäder vi har i produktion just nu och läs mer om projekten. Är det din kommande bostad som byggs?

Brokikargatan 52 och Kronomagasinsgatan 49

Viggebyvägen 9-13

Välkommen att kontakta oss!
Söker du bostad? Hör av dig till oss via telefon eller e-post. Föredrar du ett fysiskt möte kan vi boka in att ses. Välkommen!













