Lindö - Lindövägen 133

Blå Musslor
Lindö är en stadsdel med närhet till vacker natur och vatten. Här finns fina promenadstråk, lek- och badplatser samt hamnkrog. I nära anslutning hittar du även förskolor, skola, aktiv föreningsliv och livsmedelsbutik.
För att ta dig till city tar du antingen cykeln eller hoppar bekvämt på bussen, som stannar precis utanför på gatan.
Lägenheterna är från 1 till 3 rum och kök. Dom är luftiga och stilrena med hållbara materialval. Planlösningarna är genomtänkta och alla lägenheterna har fullt utrustade kök, energisnåla vitvaror och badrum utrustade med tvättmaskin och torktumlare. Till fastigheten tillhör även parkerings- och garageplatser som finnas att hyra.
Fotona nedan är från denna specifika lägenhet.
Omgående inflytt prioriteras
Eget abonnemang för el behövs ej då elförbrukningen mäts i lägenheten och betalas utifrån förbrukningen av hyresgästen via faktura.
Lägenhetsförråd finns antingen i själva lägenheten eller på annan plats.
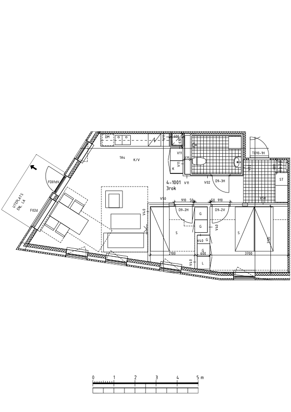
Lägenhetsnummer: 1001 (markplan)
Rum och Kök: 3 RoK + Uteplats
Hyran som anges är den hyra lägenheten kostar per månad. Avser 2025 års hyra
Med reservation för felskrivningar.
Snabbfakta
- Hiss
- Fiber
- Diskmaskin
- Tvättmaskin
- Torktumlare
- Lägenhetsförråd
- Cykelförråd
- Uteplats
*I hyran ingår värme och vatten.
Planritning

Intresseanmälan
Fler lediga bostäder
City - Repslagaregatan 11
Nyproduktion
Utforska bostäder vi har i produktion just nu och läs mer om projekten. Är det din kommande bostad som byggs?

Brokikaregatan 52 och Kronomagasinsgatan 49

Viggebyvägen 9-13

Välkommen att kontakta oss!
Söker du bostad? Hör av dig till oss via telefon eller e-post. Föredrar du ett fysiskt möte kan vi boka in att ses. Välkommen!







