City - Trädgårdsgatan 33A

Ruddammen
Centralt i Norrköping med strömmen som nära granne ligger denna charmiga fastighet från 1800-talet.
Tidigare har denna byggnad använts som bland annat ett sjukhus och på senare år för olika typer av sociala verksamheter. Fasigheten har varsamt renoverats till att nu vara bostäder. Lägenheterna är från 1 till 3 rum och kök med unika planlösningar och vackra detaljer. Dom har fullt utrustade kök och badrum med kombinerad tvätt- och torkmaskin. Till fastigheten tillhör även parkeringsplatser som finnas att hyra.
Ruddammen passar dig som gillar ett lugnt cityläge med nära till det mesta. Med en kort promenad eller cykeltur når du citykärnan för nöjen, shopping och restauranger, likaså vackra promenadstråk vid Motala ström.
Fotona är inte tagna i denna specifika lägenhet men visar exempel på interiören.
Eget abonnemang för el behövs ej då elförbrukningen mäts i lägenheten och betalas utifrån förbrukningen av hyresgästen via faktura.
Lägenhetsförråd finns antingen i själva lägenheten eller på annan plats.
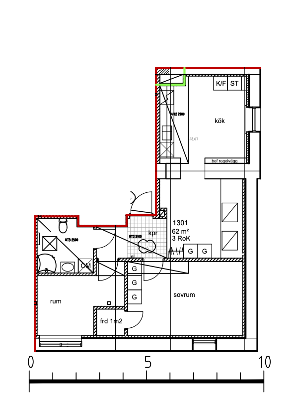
Lägenhetsnummer: A1301
Rum och Kök: 3 RoK
Hyran som anges är den hyra lägenheten kostar per månad. Avser 2025års hyra.
Med reservation för felskrivningar.
Snabbfakta
- Hiss
- Fiber
- Diskmaskin
- Tvättmaskin
- Torktumlare
- Lägenhetsförråd
- Cykelförråd
*I hyran ingår värme och vatten.
Planritning

Intresseanmälan
Fler lediga bostäder
City - Repslagaregatan 11
Nyproduktion
Utforska bostäder vi har i produktion just nu och läs mer om projekten. Är det din kommande bostad som byggs?

Brokikaregatan 52 och Kronomagasinsgatan 49

Viggebyvägen 9-13

Välkommen att kontakta oss!
Söker du bostad? Hör av dig till oss via telefon eller e-post. Föredrar du ett fysiskt möte kan vi boka in att ses. Välkommen!




